Hi ihr,
eine Kleinigkeit für manchen, der vielleicht interessiert ist. Idee ist nicht von mir, habe es vor vielen Jahren bei einem Kollegen gesehen, jetzt aber endlich für mich umgesetzt:
Ein Lernkasten (bzw. Wiederholungskasten) für den Werkbereich.
Grundidee ist ein Fragenkatalog mit jeweils 4 Antwortmöglichkeiten. Auf jeder Karte befindet sich eine Frage mit den zugehörigen Lösungen. Beantwortet werden die Fragen durch Einstecken eines Messingstabes in eines der vier Löcher, die sich im Kasten befinden. Die Karten sind an diesen Stellen gelocht, bei der richtigen Antwort ist ein Schlitz in die Karte eingeschnitten, sie lässt sich also herausziehen, wenn die Antwort richtig ist.
Der Kasten lässt sich im Klassenverband beim Kreisgespräch zur Wiederholung einsetzen, aber auch als Lernmittel für die Schüler selbst, da auch einzelne Schüler damit arbeiten können.
Unten seht ihr 5 Bilder des Kastens selbst und im Anhang findet ihr eine Zip-Datei mit im Moment 35 Fragen zu den Bereichen Metall, Holz, Kunststoff, Technisches Zeichnen und Bohren an der Bohrmaschine, sowie den Vorlagen für die einzelnen Lernbereiche.
Anmerkung 1: Auf der Vorlage befindet sich ein innerer und äußerer Rahmen. Der Innere Rahmen ist der Schnittrahmen für das Papier. Anschließend das Papier einlaminieren, eine zweite Vorlage auflegen und am äußeren Rahmen schneiden. So erhält man einen laminierten Rand, der genau in das Kästchen passt. Innenmaße des Kästchens für die Karten: 14 x 14 cm (+ etwas Luft).
Anmerkung 2: Die Löcher in meinem Modell sind so angeordnet, weil sie genau zu den Löchern meines Lochers passen, wenn ich den Anschlag komplett im Locher versenke. Anderer Locher --> Andere Anordnung der Bohrungen.
Anmerkung 3: Natürlich hoffe ich, künftig noch mehr Lernkarten erstellen zu können und diese früher oder später hier hochzuladen. Natürlich würde es mich aber auch freuen, wenn jemand die Idee übernimmt, wenn die selbst erstellten Karten auch hier eingestellt werden, um die Sammlung zu ergänzen.
Lern- und Wiederholungskasten
- Borcas
- Moderator

- Beiträge: 1934
- Registriert: 24.05.2004 14:10
- Punkte aus Reaktionen: 0
- Ausbildungsort: Bayreuth
- Ausbildungsjahr: 2000
- Wohnort: Weidenberg
- Kontaktdaten:
Lern- und Wiederholungskasten
- Dateianhänge
-
Lernkarten 01.zip- Bisherige Lernkarten 35 + Vorlagen
- (19.25 MiB) 740-mal heruntergeladen
http://www.borcas.de <-- Fachlehrerinfos und mehr
- Borcas
- Moderator

- Beiträge: 1934
- Registriert: 24.05.2004 14:10
- Punkte aus Reaktionen: 0
- Ausbildungsort: Bayreuth
- Ausbildungsjahr: 2000
- Wohnort: Weidenberg
- Kontaktdaten:
Re: Lern- und Wiederholungskasten
21 weitere Lernkarten zu den Themen
- Holzverbindungen und Verbindungsarten
- Holzwerkstoffe
- TZ-Grundlagen
- Holzverbindungen und Verbindungsarten
- Holzwerkstoffe
- TZ-Grundlagen
- Dateianhänge
-
Kartensatz 02.zip- 21 Lernkarten
- (8.41 MiB) 732-mal heruntergeladen
http://www.borcas.de <-- Fachlehrerinfos und mehr
- Borcas
- Moderator

- Beiträge: 1934
- Registriert: 24.05.2004 14:10
- Punkte aus Reaktionen: 0
- Ausbildungsort: Bayreuth
- Ausbildungsjahr: 2000
- Wohnort: Weidenberg
- Kontaktdaten:
Re: Lern- und Wiederholungskasten
16 weitere Lernkarten zu den Themen
- Bohrmaschine
- Kunststoff
- TZ - Kabinett
Achtung!!! Anhang ausgetauscht 19.10.2011!
Ein Fehlerchen... Karte Kunststoffarten 05 war eigentlich Karte 06...
- Bohrmaschine
- Kunststoff
- TZ - Kabinett
Achtung!!! Anhang ausgetauscht 19.10.2011!
Ein Fehlerchen... Karte Kunststoffarten 05 war eigentlich Karte 06...
- Dateianhänge
-
Kartensatz 03.zip- 16 Lernkarten
- (166.56 KiB) 729-mal heruntergeladen
http://www.borcas.de <-- Fachlehrerinfos und mehr
- Bernhard
- SEIBERT

- Beiträge: 2887
- Registriert: 23.05.2004 00:48
- Punkte aus Reaktionen: 1
- Name: Bernhard Seibert
- Ausbildungsort: Augsburg
- Ausbildungsjahr: 2002
- Wohnort: Buttenwiesen
- Kontaktdaten:
Re: Lern- und Wiederholungskasten
Jetzt wollte ich mir gerade den Bauplan für den Kasten ausdrucken aber ich find ihn gar nicht. Hast du in der Richtung noch was vorbereitet oder muss man ihn durch die Karten rekonstruieren?
Ich beantworte keine Fragen per PN oder Mail die im Forum beantwortet werden können!
Meine Seite: www.herrseibert.de
Meine private Seite: www.baumlaube.de
Meine Seite: www.herrseibert.de
Meine private Seite: www.baumlaube.de
- Borcas
- Moderator

- Beiträge: 1934
- Registriert: 24.05.2004 14:10
- Punkte aus Reaktionen: 0
- Ausbildungsort: Bayreuth
- Ausbildungsjahr: 2000
- Wohnort: Weidenberg
- Kontaktdaten:
Re: Lern- und Wiederholungskasten
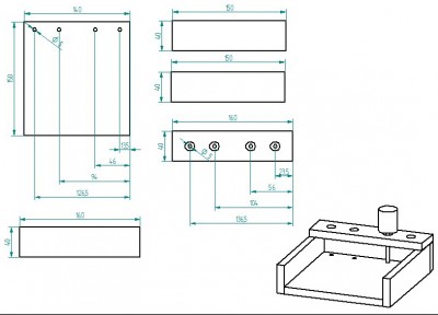
Also Bauplan habe ich keinen mit ins Forum gesetzt. Aber kann gern heute in der Schule mal die Maße rausziehen und hier posten.
LG
LG
http://www.borcas.de <-- Fachlehrerinfos und mehr
- Bernhard
- SEIBERT

- Beiträge: 2887
- Registriert: 23.05.2004 00:48
- Punkte aus Reaktionen: 1
- Name: Bernhard Seibert
- Ausbildungsort: Augsburg
- Ausbildungsjahr: 2002
- Wohnort: Buttenwiesen
- Kontaktdaten:
Re: Lern- und Wiederholungskasten
Das wäre super, danke. Macht das ganze doch etwas einfacher. 
Ich beantworte keine Fragen per PN oder Mail die im Forum beantwortet werden können!
Meine Seite: www.herrseibert.de
Meine private Seite: www.baumlaube.de
Meine Seite: www.herrseibert.de
Meine private Seite: www.baumlaube.de
- Borcas
- Moderator

- Beiträge: 1934
- Registriert: 24.05.2004 14:10
- Punkte aus Reaktionen: 0
- Ausbildungsort: Bayreuth
- Ausbildungsjahr: 2000
- Wohnort: Weidenberg
- Kontaktdaten:
Re: Lern- und Wiederholungskasten
Einzelteile bemaßt:
(Und Kartensatz 3 oben ausgetauscht, wegen Fehlers)
(Und Kartensatz 3 oben ausgetauscht, wegen Fehlers)
http://www.borcas.de <-- Fachlehrerinfos und mehr
